Our Services

I offer a complete interior design service, from individual room makeovers to full home redesigns, covering space planning, colour direction, furniture sourcing, lighting, and design visualisation, all shaped around you. Based in Dunfermline, I work with clients across Fife, Perthshire, and Central Scotland.

It begins with a free, relaxed conversation. I'll take the time to understand your project, and from there I'll put together a clear estimate of the work involved.

If you're happy to proceed, that's when the real work begins. Together we'll explore colours, textures, and precise technical drawings, leading to the moment most clients find genuinely surprising: photorealistic 3D renders that give you a detailed impression of how your space could look.

Seeing your space come to life in 3D brings clarity and confidence, and more often than not a design you've already fallen a little in love with. Once you're ready to go ahead, I handle everything from trades and suppliers to timelines.

The Journey in Drawings and Renders

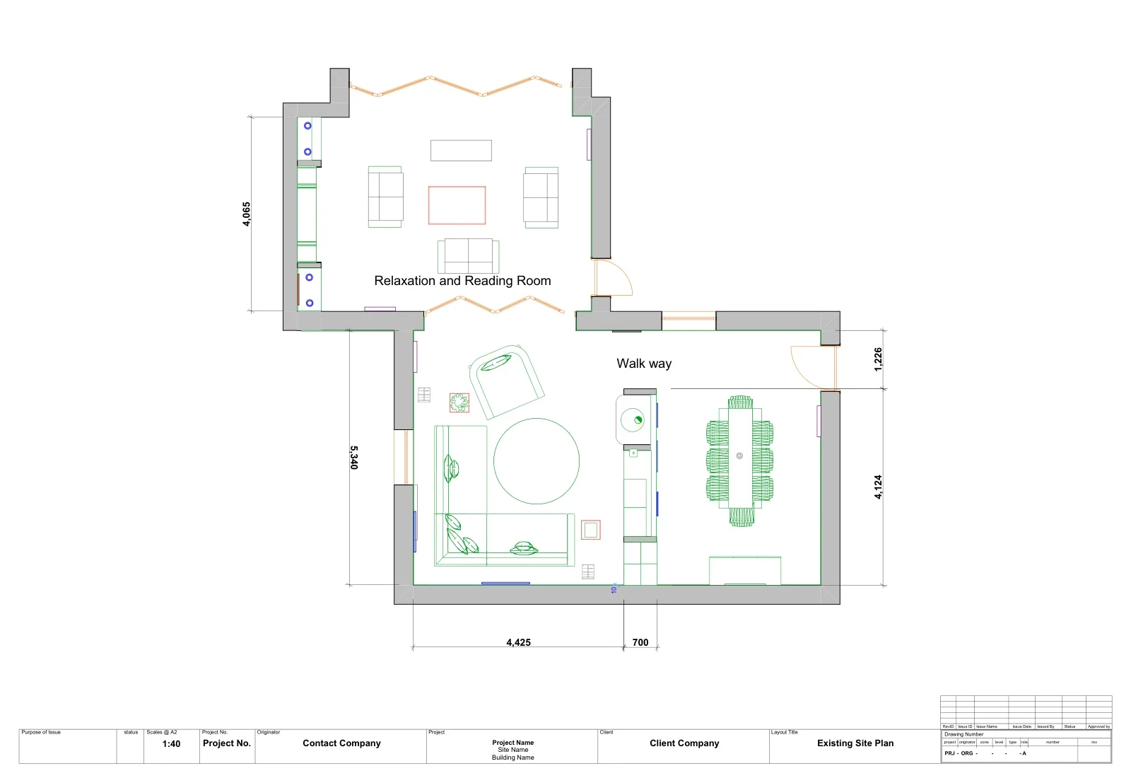
Two projects tracing the full design process, from technical drawings including floor plans and elevations, through to photorealistic 3D visualisations where the design comes to life in full detail, before anything is finalised or any work begins.

Case Study 01
Case Study 01 — Visualisation 1 Case Study 01 — Visualisation 2 Case Study 01 — Visualisation 3
Case Study 01 — Plan Case Study 01 — Elevation
Case Study 02
Case Study 02 — Visualisation 1 Case Study 02 — Visualisation 2 Case Study 02 — Visualisation 3
Case Study 02 — Plan Case Study 02 — Elevation

Ready to Get Started

Get in touch to discuss your interior design project.

Phone

07891 371923

WhatsApp

Message us

Location

Dunfermline, Scotland